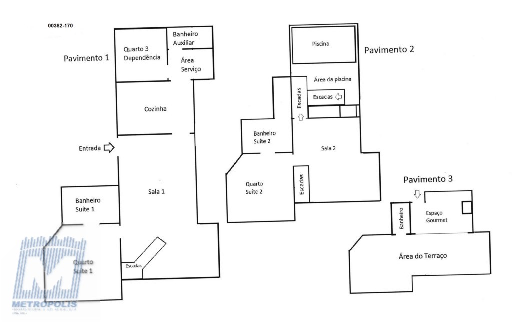
00382.170

Cobertura

Rua. Duarte Schutel, 101. Centro - Florianopolis/SC
Compartilhe:
Fachada Sala Sala Suíte 1 Suíte 1 Cozinha Área de serviço Área de serviço Dependência Banheiro auxiliar Sala superior Sala superior Suíte 2 Suíte 2 Suíte 2 Piscina Área gourmet Terraço Banheiro área cobertura terraço Terraço Vista cobertura Vaga de garagem
149,62m²
2
1
Cobertura triplex com projeto diferenciado, ideal para quem busca conforto, privacidade e lazer completo em casa!

* 2 suítes
* Sala para dois ambientes + sala aconchegante com lareira
* Cozinha planejada com ótimos armários
* Área de serviço e dependência com banheiro auxiliar
* Piscina privativa com telhado retrátil
* Espaçoso terraço com espaço gourmet e churrasqueira
* Vista panorâmica
* Garagem coberta

Ideal para quem deseja viver com estilo e aproveitar o melhor da vida com muito conforto e em excelente localização.
Agende sua visita e encante-se com essa cobertura única!

Características

Região do estado: Capital
Região da cidade: Central
Em condominio: Sim
Posição Social: Bom
Estilo: Antigo
Idade: 36
Conserv. do edifício: Bom
N° de blocos: 1
N° Andares: 10
Apto/Andar: 1
Andar: 10
Zelador: Sim
Interfone: Sim
Conservação Imóvel: Bom
Posição: Frente Lateral
Aquecimento: A gás
Central de gás: Sim
Esquadria: Alumínio
Lareira: Sim
Churrasqueira: Sim
Piscina: Coberta e aquecida
Ruas asfaltadas: Sim
Ruas calçadas: Sim
Saneamento: Sim
TV à cabo: Sim
Praça: Sim
Shopping: Sim
Creche: Sim
Escola: Sim
Universidade: Sim
Padaria: Sim
Farmácia: Sim
Supermercado: Sim
Clube Social: Sim
Ponto de táxi: Sim
Ponto de onibus: Sim
Posto de combustível: Sim
Posto policial: Sim
Bombeiros: Sim

Dependências

Quarto: 2
Suite: 2
Sala: 2
Sala de estar: Sim
Sala de jantar: Sim
Churrasqueira: Sim
Cozinha: Planejada
Área de serviço: Sim
Bwc social: 1
Dependência: 1
Bwc serviço: 1
Terraço: Sim
Garagem: 1 vaga

Simule seu financiamento

Compra: R$ 1.500.000,00
Condomínio ref. 10/2025 R$ 3.390,00
IPTU/2025 Anual R$ 1.049
TCRS/2025 Anual R$ 718,79
Total de venda: R$ 1.500.000,00
Fale por WhatsApp

Agende sua visita

Atenção! A imobiliária irá entrar em contato com você por email ou telefone para confirmar a data e horário.
Aguarde, enviando email
Mensagem enviado com sucesso

Características

Região do estado: Capital
Região da cidade: Central
Em condominio: Sim
Posição Social: Bom
Estilo: Antigo
Idade: 36
Conserv. do edifício: Bom
N° de blocos: 1
N° Andares: 10
Apto/Andar: 1
Andar: 10
Zelador: Sim
Interfone: Sim
Conservação Imóvel: Bom
Posição: Frente Lateral
Aquecimento: A gás
Central de gás: Sim
Esquadria: Alumínio
Lareira: Sim
Churrasqueira: Sim
Piscina: Coberta e aquecida
Ruas asfaltadas: Sim
Ruas calçadas: Sim
Saneamento: Sim
TV à cabo: Sim
Praça: Sim
Shopping: Sim
Creche: Sim
Escola: Sim
Universidade: Sim
Padaria: Sim
Farmácia: Sim
Supermercado: Sim
Clube Social: Sim
Ponto de táxi: Sim
Ponto de onibus: Sim
Posto de combustível: Sim
Posto policial: Sim
Bombeiros: Sim

Dependências

Quarto: 2
Suite: 2
Sala: 2
Sala de estar: Sim
Sala de jantar: Sim
Churrasqueira: Sim
Cozinha: Planejada
Área de serviço: Sim
Bwc social: 1
Dependência: 1
Bwc serviço: 1
Terraço: Sim
Garagem: 1 vaga

Simule seu financiamento

Localização

Rua. Duarte Schutel, 101. Centro - Florianopolis/SC

Imóveis que podem lhe interessar:

    Apartamento para venda no Centro em Florianopolis com 87,87m² por R$ 650.000,00 Apartamento para venda no Centro em Florianopolis com 87,87m² por R$ 650.000,00 Apartamento para venda no Centro em Florianopolis com 87,87m² por R$ 650.000,00
    00852.040 Apartamento Centro - Florianopolis/SC
    87,87m²
    2
    Venda: R$ 650.000
      Garagem para venda no Centro em Florianopolis com 12m² por R$ 50.000,00
      02061.001 Garagem Centro - Florianopolis/SC
      12m²
      Venda: R$ 50.000
        Apartamento para venda no Centro em Florianopolis com 86,24m² por R$ 700.000,00 Apartamento para venda no Centro em Florianopolis com 86,24m² por R$ 700.000,00 Apartamento para venda no Centro em Florianopolis com 86,24m² por R$ 700.000,00
        00640.010 Apartamento Centro - Florianopolis/SC
        86,24m²
        3
        Venda: R$ 700.000
          Garagem para venda no Centro em Florianopolis com 12m² por R$ 80.000,00 Garagem para venda no Centro em Florianopolis com 12m² por R$ 80.000,00
          00382.200 Garagem Centro - Florianopolis/SC
          12m²
          Venda: R$ 80.000
            Apartamento para venda no Centro em Florianopolis com 39,19m² por R$ 450.000,00 Apartamento para venda no Centro em Florianopolis com 39,19m² por R$ 450.000,00 Apartamento para venda no Centro em Florianopolis com 39,19m² por R$ 450.000,00
            02060.001 Apartamento Centro - Florianopolis/SC
            39,19m²
            1
            Venda: R$ 450.000
              Apartamento para venda no Centro em Florianopolis com 103,97m² por R$ 1.250.000,00 Apartamento para venda no Centro em Florianopolis com 103,97m² por R$ 1.250.000,00 Apartamento para venda no Centro em Florianopolis com 103,97m² por R$ 1.250.000,00
              00219.010 Apartamento Centro - Florianopolis/SC
              103,97m²
              3
              Venda: R$ 1.250.000
                Apartamento para venda no Centro em Florianopolis com 47,86m² por R$ 420.000,00 Apartamento para venda no Centro em Florianopolis com 47,86m² por R$ 420.000,00 Apartamento para venda no Centro em Florianopolis com 47,86m² por R$ 420.000,00
                02064.001 Apartamento Centro - Florianopolis/SC
                47,86m²
                1
                Venda: R$ 420.000
                  Apartamento para venda no Centro em Florianopolis com 170,82m² por R$ 1.580.000,00 Apartamento para venda no Centro em Florianopolis com 170,82m² por R$ 1.580.000,00 Apartamento para venda no Centro em Florianopolis com 170,82m² por R$ 1.580.000,00
                  00856.010 Apartamento Centro - Florianopolis/SC
                  170,82m²
                  3
                  Venda: R$ 1.580.000
                    Terreno para venda no Centro em Passo de Torres com 300m² por R$ 100.000,00 Terreno para venda no Centro em Passo de Torres com 300m² por R$ 100.000,00 Terreno para venda no Centro em Passo de Torres com 300m² por R$ 100.000,00
                    02044.001 Terreno Centro - Passo de Torres/SC
                    300m²
                    Venda: R$ 100.000

                    Cadastre-se para salvar seus imóveis

                    Preencha seu e-mail para acessar seus imóveis favoritos em qualquer computador ou celular.
                    E-mail cadastrado com sucesso

                    Nós usamos cookies e outras tecnologias semelhantes para melhorar a sua experiência em nosso site, para disponibilizar um conteúdo do seu interesse. Ao utilizar nosso site você concorda com tal monitoramento.